SYSCAD® est l’application d’AutoCAD® qui vous est indispensable, pour créer plan, coupe et détails de jonction d’une construction rigoureuse et conforme en DAO en construction métallique. Les exigences quant au respect des détails en matière d’élaboration des plans sont en constante évolution. Seuls des outils efficaces permettant des économies de temps et de frais, mènent à un tel objectif. Depuis 1989, SYSCAD® est l’outil incontournable de système de menuiserie pour fabricant et concepteur en métallerie.

  - Combinaison et vitrage des profilés
Création de coupes selon les catalogues des fabricants sans fatigue puisque sans manier les catalogues de fabrication.

- Liste dans Microsoft Excel® selon vos modèles
La liste des coupes pour une position est générée au choix, par Excel® ou sur le dessin.

- Détails des jonctions de murs
Sur demande, en tant que bloc AutoCAD® ou ObjectARX® - élément permettant de modifier et de traiter avec plus de facilité. (Tôle, étanchéité, isolation, panneau, vitre, béton, soudure, demi-produits acier, etc.)

- Immense bibliothèque d’éléments standard (env. 45.000 éléments)
Ils permettent en tant que blocs d’AutoCAD® de modifier et de remanier plus facilement. (Demi-produits acier et aluminium, vis, écrous, chevilles, ancrage, etc.)

- Calcul des points d’intersection
Donne un premier aperçu des coûts induits par votre construction et une comparaison des éléments nécessaires et des dépenses par rapport à d’autres systèmes.

- Fonction «coordonnées absolues» et «cotes de niveau»
Coter vos vues et vos coupes.

- Profilés spéciaux
Utilisez vos profilés spéciaux dans la génération de coupe et la liste de coupe

- Votre banque de données finition sur mur
Placez vos finition sur mur dans une banque de données et utilisez celle-ci pour effectuer coupes et calculs.

-.… et bien d’autres fonctions utiles
pour le métallier, le concepteur en menuiserie métallique ou l’architecte

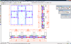
Vue et coupe SCHÜCO FW 50+ avec divers éléments d’insertion
Jonction murs avec bibliothèque intelligente des éléments standard

Vue et liste des pièces d’une balustrade avec le système universel de construction en acier
 
AutoCAD® et ObjectARX® sont des marques déposées de la société Autodesk, Inc.
Excel® est une marque déposée de la société MICROSOFT